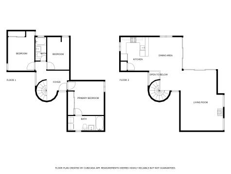
Perched atop Fulling Mill Hill this distinctive contemporary main house plus guest house offers mid-century charm and a serene retreat set on 3.3 acres of mature oak and beech forest and bordered by an ancient stone wall. Designed by renowned Yale School of Architecture Dean Paul Mitarachi, the main house features a striking circular entryway framed by mature Asiatic gardens. Step inside to discover a custom circular staircase with dramatic floor to ceiling windows, leading to the upper living area flooded with natural light from the wall of south-facing windows. The living area with high ceilings and woodstove is a comfortable place to congregate, while the kitchen and open dining areas lend themselves to modern day living. Glass sliding doors open onto a spacious 2nd story deck giving the entire living space an intimate relationship with the outdoors. On the first floor there are three total bedrooms; two bedrooms sharing a full bath plus a primary bedroom with a full bath en-suite. Total square footage represents house (1,400 sq. ft.) and guest house (518 sq. ft.). A shared six (6) bedroom septic system services both houses. 2 miles to Lucy Vincent beach

Listing Tools

Property Details of 25 Fulling Mill Road

Property Details

Interior Features

Exterior Features

Utilities and Appliances

Map Location

Listed by Tom C Wallace of Wallace & Co. Sotheby's International Realty

 "Based on information submitted to Martha's Vineyard MLS as of November 10, 2025 11:47 PM EST. All data is deemed reliable but is not guaranteed accurate by the MLS. All information should be independently reviewed and verified for accuracy. IDX information is provided exclusively for consumers’ personal, noncommercial use and may not be used for any purpose other than to identify prospective properties consumers may be interested in purchasing."

Hi there! How can we help you?

Contact us using the form below or give us a call.

Send Us A Message:

I agree to receive marketing and customer service calls and text messages from Sandpiper Realty, Inc. To opt out, you can reply 'stop' at any time or click the unsubscribe link in the emails. Consent is not a condition of purchase. Msg/data rates may apply. Msg frequency varies. Privacy Policy.

Do not fill in this field:

This site is protected by reCAPTCHA and the Google Privacy Policy and Terms of Service apply.